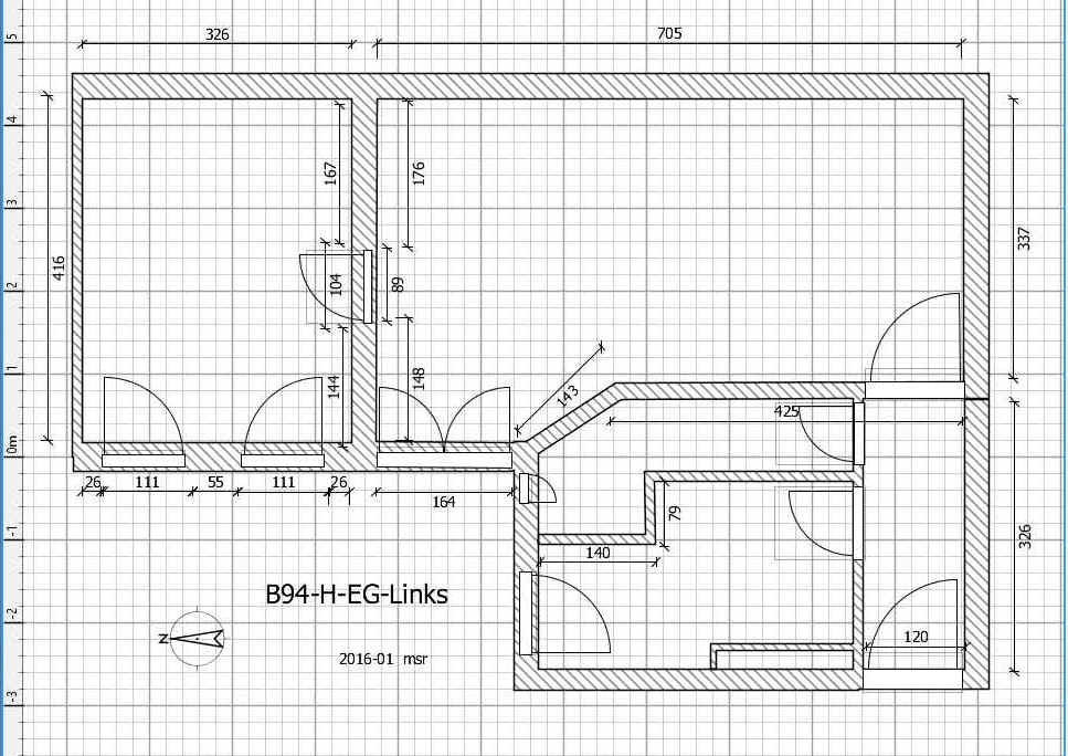
BH94h0Links201601   BV: Heizungsneubau       Raumhöhe 340 cm     Wärmebedarf 12 KW + WW

Bornholmer Str.94