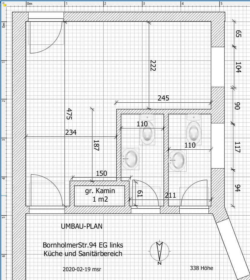
Bauskizzen        Bauskizzen 2020